德豐木業

專業、製品
設計、施工

設計規劃

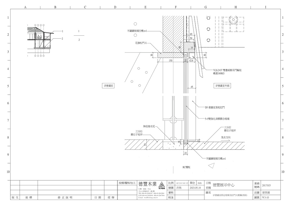
憑藉技術與經驗積累,我們可依據各案例需求,提供施工圖、零件圖、大樣圖及爆炸圖的繪製服務,協助後續製作與施工。

  • 大樣圖
  • 施工圖
  • 零件圖
  • 爆炸圖

廠內預製 X 現場組裝

在設計階段即同步思考後續施工流程,透過廠內預製,最大程度降低環境因素對工程的影響,確保品質穩定並有效縮短現場工期。若需進行現場組裝,亦可事先安裝金屬接合件,或於廠內完成試組裝,大幅提升現場施工效率。

  • 預製組裝
  • 預製組裝
  • 預製組裝
  • 現場施工
  • 現場施工
  • 現場施工
loader